Mapa   Ficha
Donde fue una notaría, nace tu nuevo proyecto
Castro-Urdiales (Centro Castro) - REF. 1244

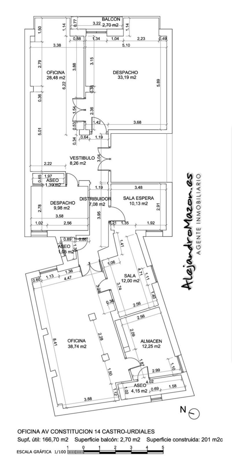
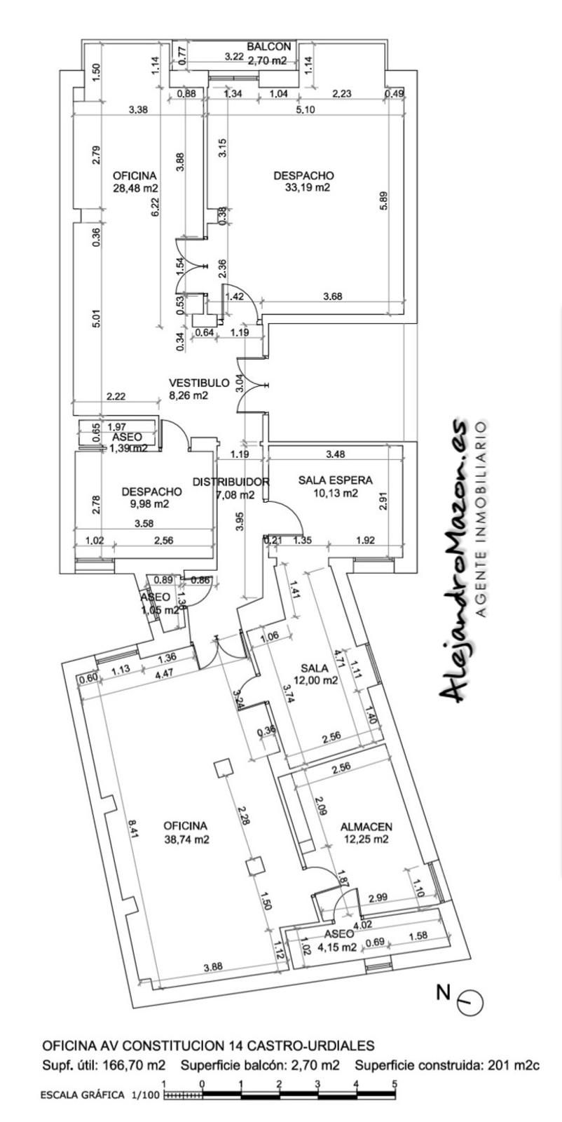
201 m2

2,70 m2

6

3

1
venta: 665.000 €
antes: 760.000 €
Descripción

En pleno parque Amestoy, este inmueble, ha sido testigo de firmas, decisiones importantes y momentos únicos… porque fue durante años una notaría. Un espacio que respira historia y que ahora está listo para renacer.

La ubicación es sencillamente espectacular: la fachada principal se abre a la bahía de Castro Urdiales, regalando una luz increíble y unas vistas que no necesitan presentación. Desde sus ventanales se divisan el ayuntamiento, el puerto, la iglesia de Santa María, el faro-castillo la ermita de Santa Ana, los jardines, el club náutico y el paseo marítimo como si fueran parte del piso. El balcón al mar es el broche de oro.

Actualmente distribuido como oficina con varios despachos, recepción, sala de espera, 3 baños y almacén, es un lienzo perfecto tanto para uso profesional como para transformarlo en una espectacular vivienda.

Pero su potencial va mucho más allá.

El proyecto de reforma permitiría crear una vivienda de revista una gran cocina-comedor, tres o cuatro dormitorios, tres baños y un amplio salón-comedor. La distribución lo permite, y los planos están listos para inspirarte.

Es un primer piso sin ascensor, pero la comunidad ya ha aprobado su instalación (pendiente de presupuesto), lo que suma valor de cara al futuro. Y recuerda que bajo el parque está el parque con abonos de larga estancia.

¿Buscáis una oficina con presencia imponente y ubicación imbatible? ¿O prefieres un hogar único frente al mar, lleno de carácter y posibilidades? Aquí podéis tenerlo todo.

Si estáis interesados en visitarlo, no tardéis en llamarme. Yo estoy deseando enseñarlo.

Alejandro Mazón: agente inmobiliario.

Características
Precio Venta 665.000 €
Precio/m² 3.308
Año de construcción 1900
Construidos 201 m2
Útiles 166,70 m2
Dormitorios 6
Baños 3
Calefacción Radiadores eléctricos
Terraza
Altura/Planta 1
1ª línea de playa
Estado Bueno -
Tipo de suelo Laminado
Aire acondicionado
Calificación Energética (F) VER
Luz
Agua
Ubicación
Escalas de eficiencia


Eficiencia Emisiones: 21,10
Eficiencia Consumo: 124,70
124,7
21,1

Tu agente
Alejandro Mazón
Contáctanos

Si deseas más información sobre esta propiedad, por favor, rellena el formulario.

 Sí, he leído y/o acepto las Condiciones de uso y la Política de privacidad
Inmobiliaria en Castro-Urdiales

CONTÁCTANOS

C/ Los Caseríos 1, 2º B Dcha.
39700 Castro-Urdiales